
| Vraagprijs | € 605.000,- v.o.n. | |
| Woonoppervlakte | 146 m² | |
| Inhoud | 408 m³ | |
| Perceeloppervlakte | 234 m² |
| Status | Verkocht | |
| Energielabel | A+++ | |
| Afstand school | 0,1 km | |
| Afstand supermarkt | 0,2 km |
Dijkwoningen Berk
Ook de dijkwoningen van het type Berk zijn een plaatje om te zien. De houten elementen steken fris af tegen de lichte baksteen. Het asymmetrische zwarte dak zorgt voor een fijn contrast. Leuk zijn ook de voortuintjes bij deze woningen. Zo maakt u snel een praatje met de buren.
Met de entree van de woning op dijkniveau, twee parkeerplaatsen op eigen terrein en een tuin op het zuiden zijn deze woningen ideaal voor gezinnen met kinderen. Met drie slaapkamers op de tweede verdieping én de extra mogelijkheden van de zolder en het souterrain, kunt u hier alle kanten mee uit. Richt u de tuinkamer in als ruime werkplek, gezellige serre of als speelkamer voor de kinderen?
De tuinkamer
Een leuk detail van een dijkwoning vindt u in het souterrain. Grenzend aan de tuin kunt u hier alle kanten mee op. Komt hier uw woonkamer zodat u boven de ruimte geeft aan uw keuken en eetkamer? De berging is handig om uw tuinkussens op te bergen.
De begane grond
Is het boven of beneden? Het is maar van welke kant u het bekijkt. Aan de voorkant grenst de voordeur aan de straat. Aan de achterzijde ziet u de extra verdieping. De charme van een dijkwoning!
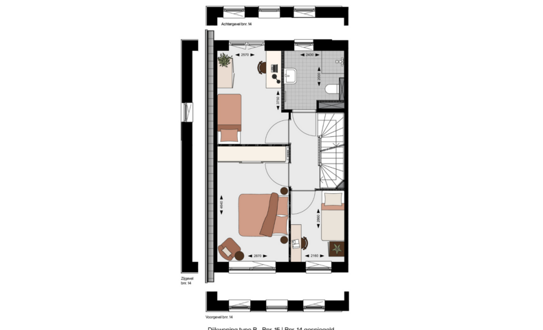
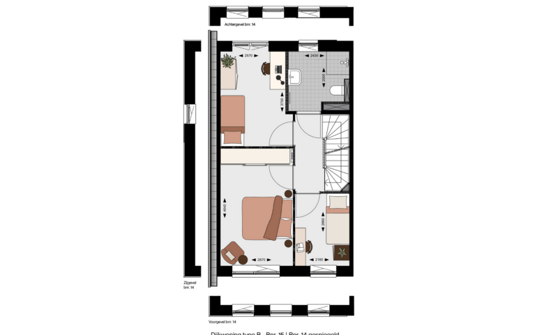
Eerste verdieping
Twee grote slaapkamers en een wat kleinere. En daarnaast een prettig bemeten badkamer met een raam. Dat treft u op de eerste verdieping van deze dijkwoning. In alle slaapkamers is plek voor kasten en een bureau of gezellig zitje.
Tweede verdieping
Door de expressieve dwarskap wijkt bouwnummer 15 af van de andere dijkwoningen. Op de tweede verdieping vindt u de techniekruimte met plek voor de wasmachine en de droger en een flinke open ruimte van ca. 27 m², die u naar eigen inzicht kunt indelen. Bijvoorbeeld als werk- of hobbykamer, of gewoon als zolder. Uiteraard hoort een dakkapel tot de mogelijkheden. Ramen in zowel de voor- als achtergevel zorgen voor daglicht.
| Status | Verkocht |
| Aanvaarding | In overleg |
| Soort object | Woonhuis |
| Soort woning | Eengezinswoning |
| Type woning | Twee onder één kapwoning |
| Bouwvorm | Nieuwbouw |
| Ligging | In een woonwijk |
| Woonoppervlakte | 146 m² |
| Aantal woonlagen | 4 |
| Energieklasse | A+++ |
| Energie einddatum | maandag 19 september 2033 |
| Isolatie | Volledig geïsoleerd |
| Warmwater | Elektrische boiler eigendom |
| Verwarming | Vloerverwarming gedeeltelijk, warmtepomp |
| Tuin | Tuin rondom |
| Hoofdtuin | Tuin rondom |
| Garage | Geen garage |
| Voorzieningen | Op eigen terrein |
| Dak | Zadeldak |
| Permanente bewoning | Ja |
| Onderhoud binnen | Uitstekend |
| Onderhoud buiten | Uitstekend |
| Voorzieningen | Mechanische ventilatie |
| Gemeente | Molenlnen |
| Sectie | D |
| Perceelnummer | 638 |
| Oppervlakte | 234 m² |
| Eigendomssituatie | Volle eigendom |
Kom meer te weten over de activiteiten, geschiedenis en inwoners van uw toekomstige woonomgeving.
Onze kantoren zijn maandag tot en met vrijdag van 9.00 uur tot 17.30 uur geopend en op zaterdag bent u van harte welkom in onze vestiging in Papendrecht van 9.00 tot 16.00 uur.