0800 - 2022
235002030

Dorpsstraat 16 Streefkerk

Koopsom: € 680.000,- v.o.n.
kantoor OA
Woning delen
Vestiging Makelaar Oud-Alblas 0184 – 69 17 73 Bereik ons ook via WhatsApp! 06 – 30 51 36 18 Neem contact op met ons

Kenmerken

vraagprijs Vraagprijs € 680.000,- v.o.n.
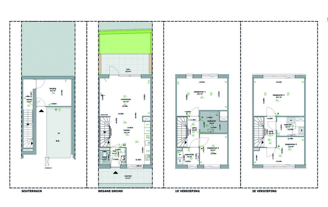
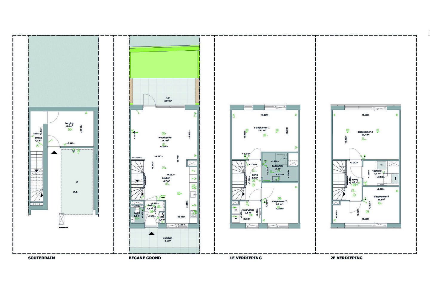
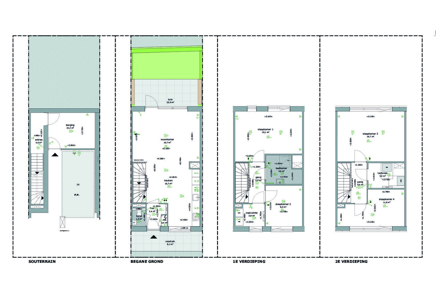
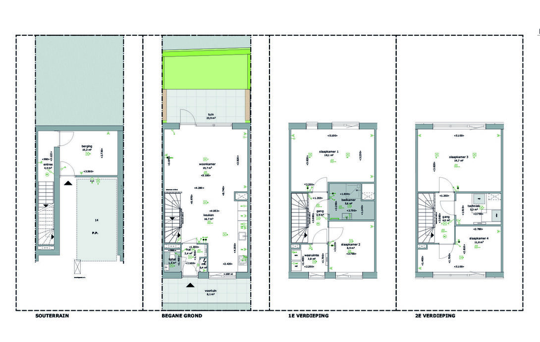
oppervlakten Woonoppervlakte 147 m²
Inhoud 459 m³
status Status Beschikbaar
energielabel Energielabel A
afstand school Afstand school 0,3 km
afstand supermarkt Afstand supermarkt 0,1 km

Omschrijving

Thuiskomen aan de Lek – Wonen op z’n mooist in Streefkerk

De oplevering van deze nieuwbouwwoning vindt binnenkort plaats!

Heeft u ooit zo’n unieke woonlocatie gezien? Hooggelegen op de dijk langs de schilderachtige rivier de Lek, aan de sfeervolle Dorpsstraat in Streefkerk. Hier woont u in alle rust met een weids uitzicht – elke dag opnieuw een ansichtkaart.

Nieuwe Haven Streefkerk biedt u het beste van twee werelden: wonen aan het water, pal naast Jachthaven Liesveld, én alle belangrijke voorzieningen op loopafstand. Bovendien bent u uitstekend verbonden met omliggende steden.
Stelt u zich eens voor: vanuit uw relaxfauteuil of luie tuinstoel genieten van een panoramisch uitzicht terwijl de zon langzaam zakt achter de rivier. Dit is niet zomaar wonen, dit is thuiskomen.

Wat kunt u verwachten van deze ruime eengezinswoning?

Een fijne voortuin én een ruime achtertuin – altijd een plekje in de zon of schaduw.
Toegang via de tuin of de ondergelegen stallingsgarage, waar u beschikt over twee privéparkeerplaatsen en een berging.
Een woonkamer met veel lichtinval en met open keuken op dijkniveau.
Compleet uitgeruste keuken met moderne Etna inbouwapparatuur.

Op de eerste verdieping:
Een royale slaapkamer (ca. 18m²) aan de achterzijde met een fenomenaal uitzicht over de Lek.
Een tweede slaapkamer aan de voorzijde (ca. 9m²).
Een nette, volledig betegelde badkamer met douche, wastafel en 2e toilet.
Een aparte wasruimte voor uw wasmachine en droger.

De tweede verdieping verrast u met:
Een ruime, lichte slaapkamer aan de achterzijde (ca. 19m²) met hoge ramen.
Een vierde slaapkamer aan de voorzijde (ca. 12m²).
Een techniekruimte met de warmtepomp – klaar voor een duurzame toekomst.

Kortom: een buitenkans voor wie op zoek is naar rust, ruimte, comfort én karakter. Laat u betoveren door deze plek aan de Lek. Nieuwe Haven Streefkerk is meer dan een woning – het is een manier van leven.

Note: Verkoop aan particulieren die de woning zelf gaan bewonen heeft de voorkeur. Bij aankoop door een belegger geldt een verhoogd overdrachtsbelastingtarief van 10,4%, dat bovenop de koopsom komt.
Bij de verkoop van deze woning is Projectnotaris Van der Heiden Streefkerk betrokken.

Kenmerken

Overdracht

Status Beschikbaar
Aanvaarding In overleg

Bouwvorm

Soort object Woonhuis
Soort woning Eengezinswoning
Type woning Tussenwoning
Bouwvorm Nieuwbouw
Ligging Vrij uitzicht, open ligging, aan vaarwater

Indeling

Woonoppervlakte 147 m²
Aantal woonlagen 4

Energie

Energieklasse A
Energie einddatum maandag 1 januari 2035
Isolatie Volledig geïsoleerd
Warmwater Elektrische boiler eigendom
Verwarming Vloerverwarming geheel, warmtepomp

Buitenruimte

Tuin Achtertuin, voortuin
Hoofdtuin Achtertuin
Ligging hoofdtuin Noord
Kwaliteit tuin Aan te leggen

Bergruimte

Garage Parkeerkelder
Schuur / Berging Inpandig

Parkeergelegenheid

Voorzieningen Parkeergarage

Dak

Dak Dwarskap

Overig

Permanente bewoning Ja
Onderhoud binnen Uitstekend
Onderhoud buiten Uitstekend
Huidig gebruik Woonruimte
Huidige bestemming Woonruimte

Voorzieningen

Voorzieningen Mechanische ventilatie, zonnepanelen

Kadastrale gegevens

Gemeente Streeflerl
Sectie E
Perceelnummer 1265A
Eigendomssituatie Volle eigendom
Méér weten over Streefkerk

Kom meer te weten over de activiteiten, geschiedenis en inwoners van uw toekomstige woonomgeving.

Uw toekomstige woonomgeving
Dorpsstraat 16 Streefkerk • Streefkerk € 680.000,-
Afspraak maken voor een bezichtiging? Neem contact met ons op

Contact opnemen?

Onze kantoren zijn maandag tot en met vrijdag van 9.00 uur tot 17.30 uur geopend en op zaterdag bent u van harte welkom in onze vestiging in Papendrecht van 9.00 tot 16.00 uur.

Ik heb een vraag 0800 - 2022 WhatsApp: 06 - 30 51 36 18

Onze makelaars

René website KEH
René van de Giessen

Makelaar / Nieuwbouw specialist

Bekijk ons team
© Kooyman Eigen Huis 2026 MM
Sluiten