0800 - 2022

Bonkelaarplein 27 g Sliedrecht

Koopsom: € 303.000,- k.k.
knt Sldr 7 mei 2018
Woning delen
Vestiging Makelaar Sliedrecht0184 – 49 94 44Bereik ons ook via WhatsApp!06 – 30 57 69 85Neem contact op met ons

Kenmerken

vraagprijsVraagprijs€ 303.000,- k.k.
oppervlaktenWoonoppervlakte60 m²
Inhoud159 m³
Perceeloppervlakte60 m²
statusStatusVerkocht
energielabelEnergielabelA
afstand schoolAfstand school0,2 km
afstand supermarktAfstand supermarkt0,3 km
Download de plattegrond

Omschrijving

Nieuw woonproject: Transformatie voormalige Rabobank in Sliedrecht

Binnenkort krijgt een markant pand in het hart van Sliedrecht een compleet nieuw leven. De voormalige Rabobank wordt getransformeerd tot een modern wooncomplex met 23 stijlvolle appartementen, variërend van 1-, 2- tot 3-kamerwoningen. De woonoppervlaktes lopen uiteen van 28 m² tot 68 m² – ideaal voor starters, alleenstaanden en kleine huishoudens die comfortabel en energiezuinig willen wonen.

De appartementen worden gebruiksklaar opgeleverd, compleet met modern sanitair, fraaie tegelafwerking en een duurzame warmtepompinstallatie, maar zonder keuken. Iedere koper ontvangt bij aankoop van één van deze appartementen een keukencheque ter waarde van € 4.000,-, te besteden bij Keukenhof Sliedrecht, zodat de keuken volledig naar eigen smaak kan worden samengesteld.

De ligging is ronduit ideaal: op loopafstand van het levendige centrum, diverse winkels, het treinstation en bushaltes, terwijl de Kerkbuurt met haar gezellige horecagelegenheden en historische charme om de hoek ligt. Een unieke kans om comfortabel en eigentijds te wonen op een centrale locatie met karakter.

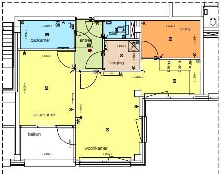
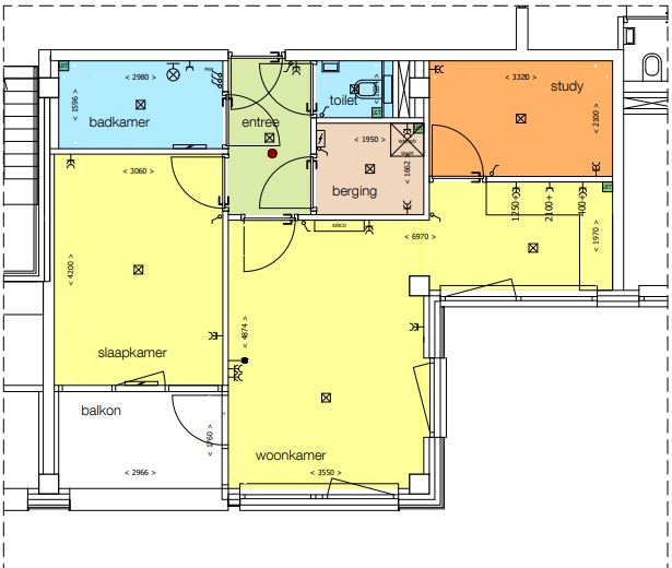
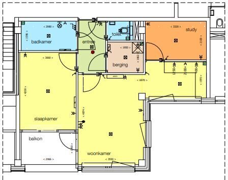
Dit 3-kamerappartement is gesitueerd op de eerste verdieping met een inpandig balkon gelegen op het Oosten. De verwarming geschiedt door middel van een lucht/lucht warmtepomp (airco) en elektrische radiatoren in de bad- en slaapkamer. Behalve een slaapkamer is er nog een study of hobbyruimte. Op begane grond is de inpandige berging die bij dit appartement behoort.

Het complex is voorzien van een lift.

Heb je interesse en inzicht in jouw financiële mogelijkheden, dan nodigen wij jou graag uit om contact met ons op te nemen — wellicht woon jij volgend jaar al in jouw eigen appartement.

Kenmerken

Overdracht

StatusVerkocht
AanvaardingIn overleg

Bouwvorm

Soort objectAppartement
BouwvormBestaande bouw
LiggingIn het centrum

Indeling

Woonoppervlakte60 m²
Perceeloppervlakte60 m²
Aantal woonlagen1

Energie

EnergieklasseA
Energie einddatumdonderdag 31 december 2026
IsolatieVolledig geïsoleerd
WarmwaterElektrische boiler eigendom

Buitenruimte

TuinGeen tuin

Bergruimte

GarageGeen garage

Parkeergelegenheid

VoorzieningenOpenbaar parkeren

Dak

DakPlat dak

Overig

Permanente bewoningJa
Onderhoud binnenGoed
Onderhoud buitenGoed
Huidig gebruikWoonruimte
Huidige bestemmingWoonruimte

Voorzieningen

VoorzieningenMechanische ventilatie, lift, natuurlijke ventilatie

Kadastrale gegevens

GemeenteSliedrecht
SectieK
Perceelnummer4112
Oppervlakte60 m²
EigendomssituatieVolle eigendom
Méér weten over Sliedrecht

Kom meer te weten over de activiteiten, geschiedenis en inwoners van uw toekomstige woonomgeving.

Uw toekomstige woonomgeving
Bonkelaarplein 27 g Sliedrecht • Sliedrecht€ 303.000,-
Afspraak maken voor een bezichtiging?Neem contact met ons op

Contact opnemen?

Onze kantoren zijn maandag tot en met vrijdag van 9.00 uur tot 17.30 uur geopend en op zaterdag bent u van harte welkom in onze vestiging in Papendrecht van 9.00 tot 16.00 uur.

Ik heb een vraag0800 - 2022WhatsApp: 06 - 30 51 36 18

Onze makelaars

1
Randy Madronal

Junior Makelaar

Bekijk ons team
© Kooyman Eigen Huis 2026MM
Sluiten